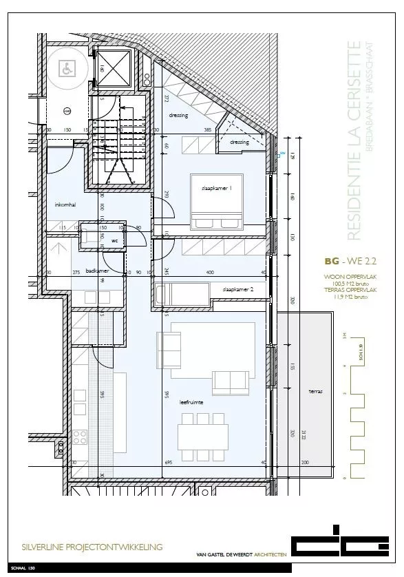
Zeer praktisch twee slaapkamer appartement gelegen op de tweede verdieping (100,5m²) met aangelegd terras (11,9m²)!

Bredabaan 961 bus 2.2, 2930 Brasschaat vanaf €287.500,-

Dit appartement gelegen op de tweede verdieping betreedt u via de inkomhal, welke toegang geeft tot de twee slaapkamers, badkamer, toilet en berging. Verder heeft u toegang tot de leefruimte vanuit de inkomhal. De leefruimte is uitgerust met een open keuken, zitruimte en eetruimte die grenzen aan grote open raampartijen.

Alle appartementen worden voorzien van een kwalitatieve afwerking waarin u zelf nog de hand hebt. Op deze manier kan u uw appartement volledig naar eigen smaak en keuze laten inrichten.

Het project is voorzien van 12 carports met privatieve (fietsen)berging. De aankoop van een carport/berging (€18.500 excl. kosten) is verplicht.

De werken zullen starten tweede kwartaal 2021 en de oplevering wordt verwacht eind 2022.

Ontdek alles over "La Cérisette" op www.la-cerisette.be

Indien u graag meer informatie wenst of een afspraak op kantoor, dan kan u ons altijd contacteren via mail of op het nummer 03/337.50.70.

Lees meer Lees minder

Wenst u meer info of een afspraak voor dit pand?

Ik heb het privacybeleid en de disclaimer gelezen en ga ermee akkoord.